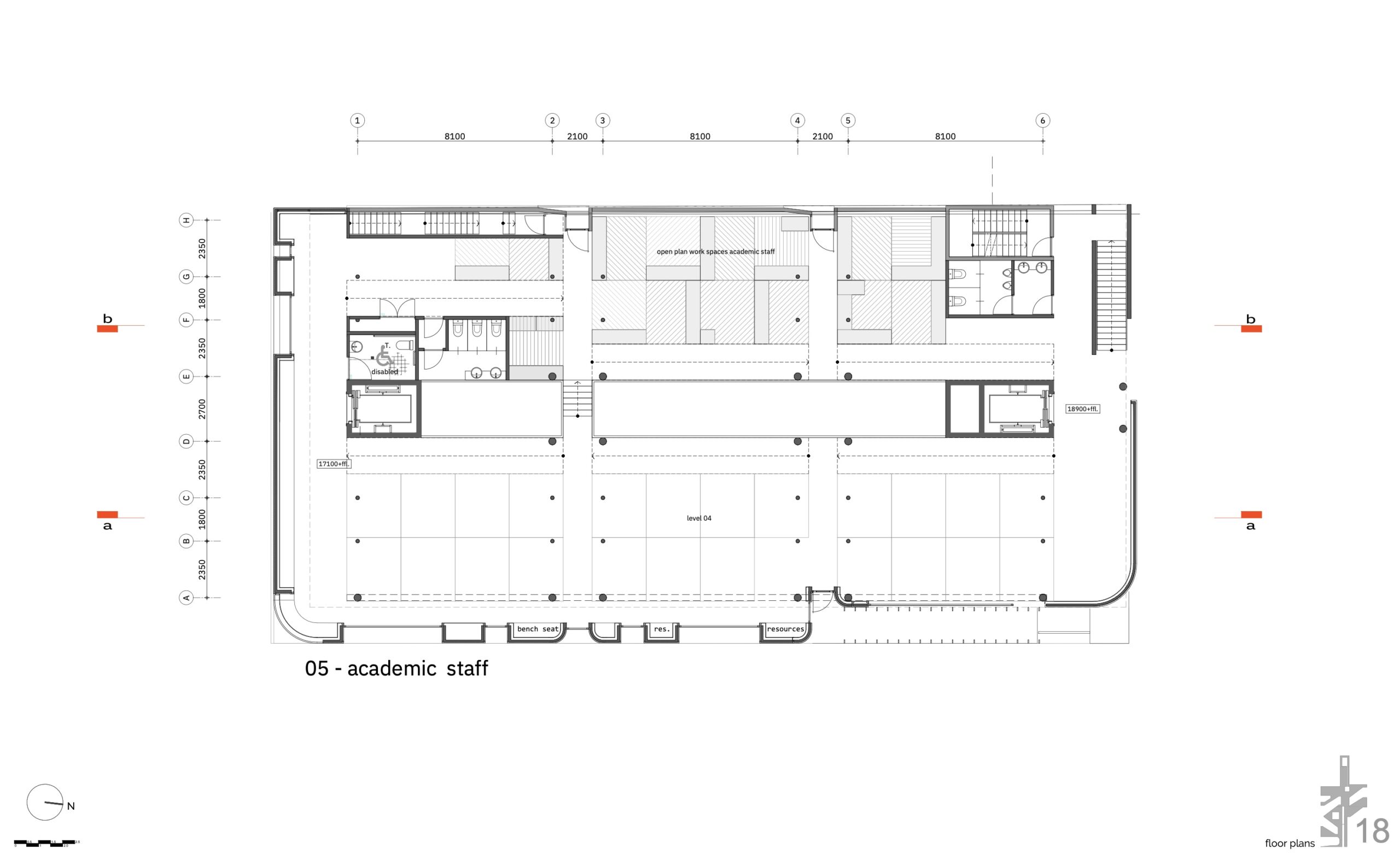
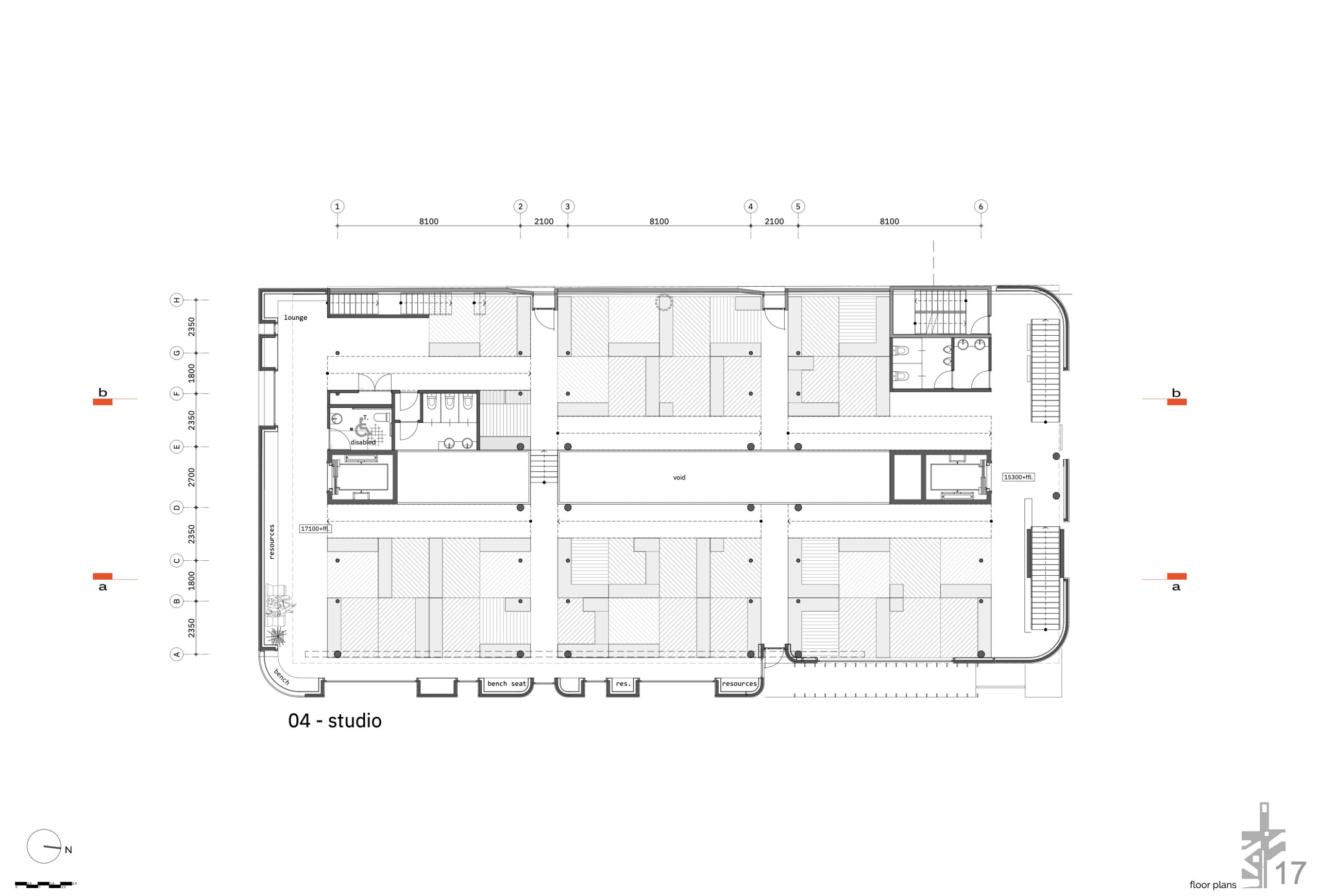
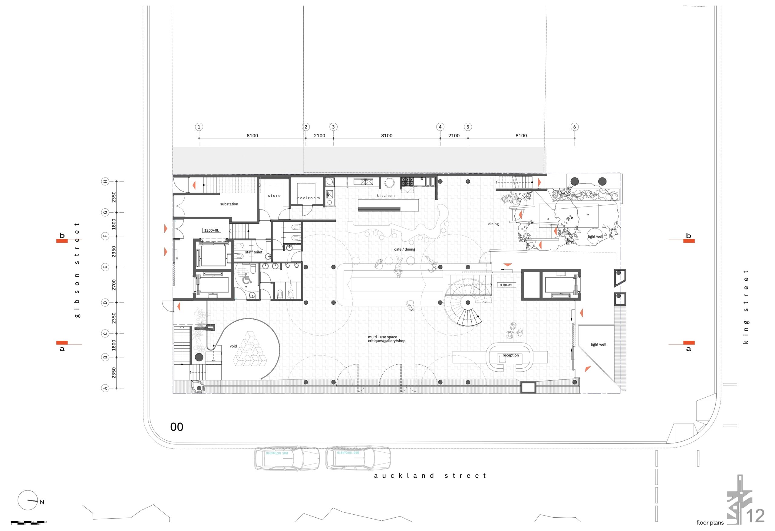
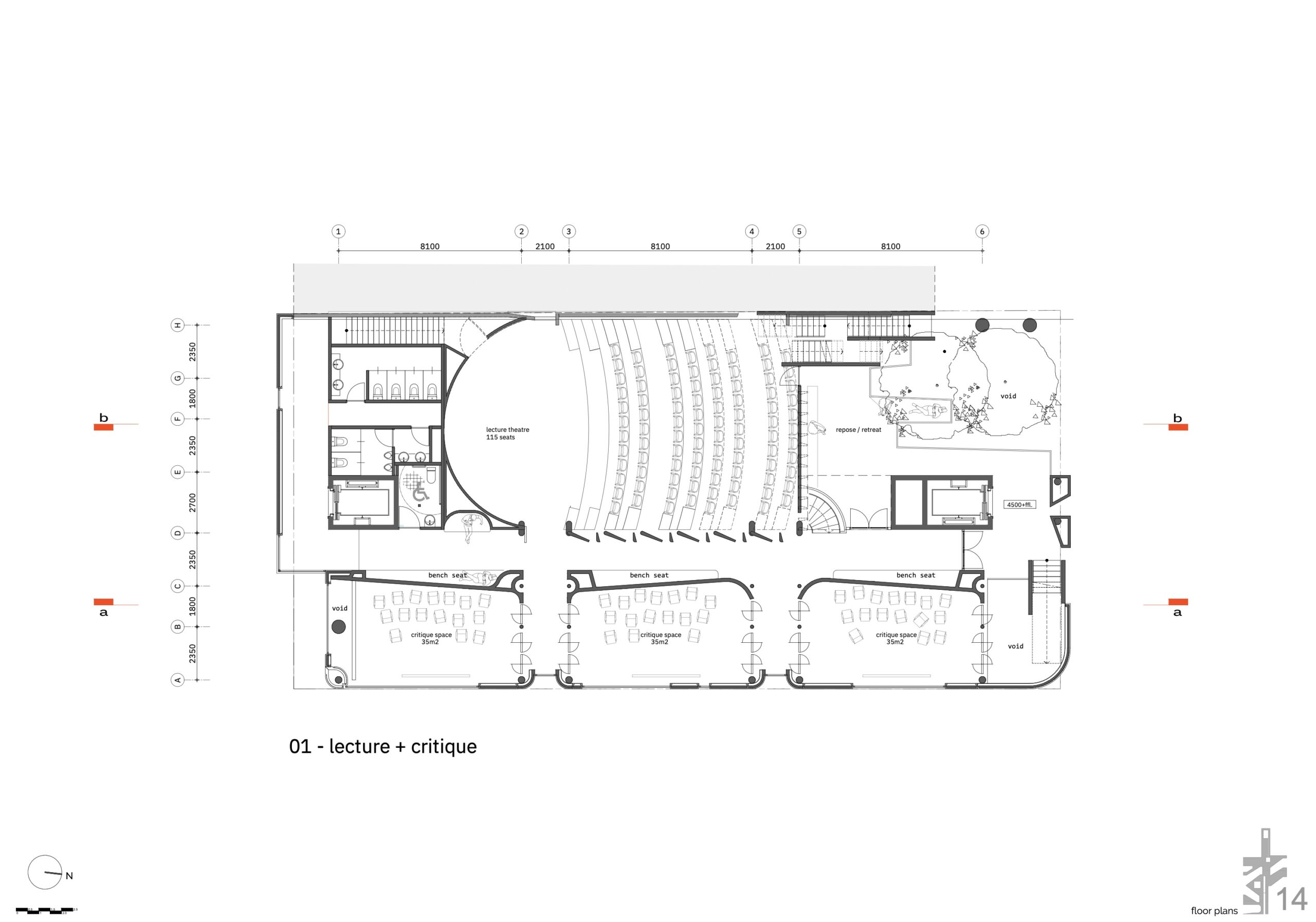
New Faculty of Architecture and student accommodation, Civic Park, University of Newcastle
Speculations on Unceded Land, 2023